消防改造
消防維保
主機維修
聯系我們
- 聯系人:郭經理
- 傳真:010-69552656
- 電話:400-0346-119
- 電話:010-57491119
- 郵箱:506665119@qq.com
- 地址:北京通州區M5運河1號3號樓403室
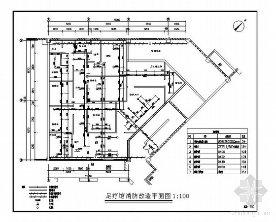
某足療館消防改造平面圖
來源:消防檢測 時間:2017-09-04 09:44:15
1、本工程為北京xx山莊NW樓首層里的足療館,面積為229m2,層高為4.5m。
2、本施工圖設計內容包括消防、噴灑及滅火器系統的設計。
消火栓給水系統水源:來自小區消防管網,會所地下室設有消防水池與消防管網相連。
水量:本建筑耐火等級為二級。室外消火栓用水量為15L/s,室內消火栓用水量為10L/s,同時使用水槍數量為2支。
水壓:會所地下室消防泵房內設消防泵兩臺,工作壓力為0.55MPa。系統:從原有的首層消防環網上接出支管連接消火栓。
自動噴水滅火系統水源:來自小區消防管網,會所地下室設有消防水池與消防管網相連。水量:本建筑火災危險等級按照中危I級設計,滅火用水量為16L/s。水壓:會所地下室設消防泵房,其中設噴灑泵兩臺,工作壓力為0.65MPa。系統:自動噴灑平時管網壓力由位于位于會所地下室消防泵房內的噴淋穩壓泵維持,火災時,噴頭動作,水流指示器動作向消防中心顯示著火區域位置,此時濕式報警閥處的壓力開關動作自動啟動噴水泵,并向消防中心報警。噴頭:均采用ZSTP15/68°c玻璃球噴頭。
移動式滅火器本建筑設干粉磷酸銨鹽手提式滅火器,數量詳見平面圖。
滅火器的配置位置詳見平面圖.


